Мы используем куки-файлы. Соглашение об использовании
Площадь3 424 м²
Этажность8
Отчёт о привлекательности объектаУзнайте, насколько помещение и район подходят для вашего бизнеса
Что входит в отчёт
  • Охват населения
  • Пешеходный трафик
  • Автомобильный трафик
  • Средний бюджет семьи по району
  • Арендные ставки рядом
  • Точки притяжения
  • Конкуренты в радиусе 1 км
  • Рекомендации по выбору места для бизнеса
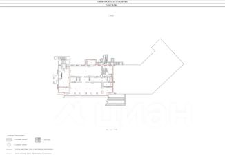
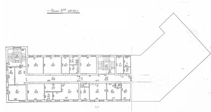
Для компаний, работающих с НДС! Предлагаем к продаже часть административного здания площадью 3424 кв.м., 1,2,5,7,8 этаж и цоколь, или отдельными этажами- 1 ,2,5,7, 8 этаж. или цоколь. Здание находится в Центральном районе, в шаговой доступности от пл. Ленина, почти напротив Правительства Новосибирской области (270 м.) Здание оснащено лифтами, есть собственная парковка на 15 автомобилей, хороший ремонт, мебель, на каждом этаже с/у, в каждом офисе кондиционер. Площади офисов от 306 до 3424 кв.м. Можно купить отдельно один этаж, можно все 0,1,2,5,7,8 этаж. 1этаж- 384,6 кв.м. - 71 млн.руб, 2 этаж -305,8 кв.м.-42,5 млн.руб., 5 этаж-306,6кв.м.-41,5 млн.руб., 7 этаж-961,7 кв.м.-123,5 млн.руб., 8 этаж-629,7 кв.м.-68 млн.руб., Цоколь-472 кв.м., цена договорная. МОПЫ-364 кв.м. будут разделены пропорционально площади, Общая площадь 3424 кв.м., общая цена 375 млн.руб. уместен торг, с учетом сроков и условий сделки. Помещении в собственности юридического лица, НДС в цене. Прямые договоры с ресурсоснабжающими компаниями. Приглашаем на просмотр.
lock

Войдите или зарегистрируйтесь
для просмотра информации

Просматривайте условия сделки и всю информацию об объекте
Сохраняйте фильтры в поиске и не вводите заново
Доступ к избранному с любого устройства
Неограниченное добавление в избранное
Позвоните автору
Вам ответят на все вопросы
Остались вопросы по объявлению?
Позвоните владельцу объявления и уточните необходимую информацию.
  • Инфраструктура
  • Похожие рядом
Приточная вентиляция
Местное кондиционирование
Центральное отопление
Сигнализация
Помощь надёжных риелторов
Риелтор партнёр Циан поможет купить или продать любую недвижимость
375 000 000 ₽
5 013 276 $
4 230 458
Цена за метр
109 522 ₽
Налог
НДС включен: 67 622 950 ₽
Агентство недвижимости
Суперагент
На Циан
8 лет
Объектов в работе
29