Мы используем куки-файлы. Соглашение об использовании
Помещение свободного назначения, 42,2 м²
Площадь42,2 м²
Этаж7 из 7
КлассB
Отчёт о привлекательности объектаУзнайте, насколько помещение и район подходят для вашего бизнеса
Что входит в отчёт
  • Охват населения
  • Пешеходный трафик
  • Автомобильный трафик
  • Средний бюджет семьи по району
  • Арендные ставки рядом
  • Точки притяжения
  • Конкуренты в радиусе 1 км
  • Рекомендации по выбору места для бизнеса
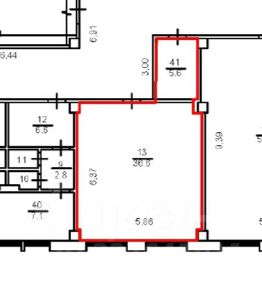
Продажа от собственника. Помещение свободного назначения (ПСН) площадью 42,2 кв.м на 7-м этаже Бизнес-центра по адресу: ул. Державина, 28. Технические характеристики: • Планировка: Два смежных кабинета (36,6 м² и 5,6 м²). • Коммуникации: Внутри помещения установлена собственная мокрая точка (раковина). Кондиционирование, центральное отопление. • Состояние: Выполнен офисный ремонт. • Инфраструктура здания: Лифт, круглосуточная охрана, доступ в здание без выходных. Санузел на этаже (рядом с кабинетом). • Центр города, 8 минут до метро. Окна на ул. Державина. • Подходит под бьюти-сферу, медицину или представительство компании. ВНИМАНИЕ РИЕЛТОРАМ: Продажа напрямую от собственника. Агентские услуги по продвижению не интересуют. Комиссию посредникам не выплачиваю
lock

Войдите или зарегистрируйтесь
для просмотра информации

Просматривайте условия сделки и всю информацию об объекте
Сохраняйте фильтры в поиске и не вводите заново
Доступ к избранному с любого устройства
Неограниченное добавление в избранное
Позвоните автору
Вам ответят на все вопросы
Остались вопросы по объявлению?
Позвоните владельцу объявления и уточните необходимую информацию.
  • Инфраструктура
  • Похожие рядом
Помощь надёжных риелторов
Риелтор партнёр Циан поможет купить или продать любую недвижимость
СобственникID 139759935
    4 750 000 ₽
    63 435 $
    54 115
    Цена за метр
    112 560 ₽
    Налог
    УСН
    СобственникID 139759935