Мы используем куки-файлы. Соглашение об использовании
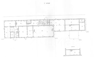
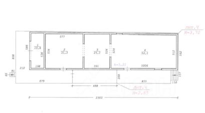
Площадь1 579,4 м²
Этажность2
Отчёт о привлекательности объектаУзнайте, насколько помещение и район подходят для вашего бизнеса
Что входит в отчёт
  • Охват населения
  • Пешеходный трафик
  • Автомобильный трафик
  • Средний бюджет семьи по району
  • Арендные ставки рядом
  • Точки притяжения
  • Конкуренты в радиусе 1 км
  • Рекомендации по выбору места для бизнеса
Предлагается в продажу производственно-складская база по адресу: улица Королева. Адрес указан условно! Локация: - База располагается в центре производственно-промышленной зоны Дзержинского района; - Объект находится в 3 км от метро "Березовая Роща"; - Удобная транспортная развязка. Состав базы: 1. Здание 1579,4 м2: - 2 этажа; - Производственные помещения; - Высота потолков в производственных помещениях 6 м; - Промышленная вытяжная вентиляция; - Несколько ворот под фуру и малотоннажный транспорт; - Кран-балка на 2 т; - Офисные помещения; 2. Здание 115,1 м2; 3. Земельный участок 8 445 м2; - Площадка для маневрирования большегрузных машин; - Есть возможность для посторойки еще одного здания. Коммерческие условия: - Цена продажи 160 000 000 рублей, в т.ч. НДС 5%; - Все в собственности; - Продажа от ИП; - Все сдано в аренду, МАП по запросу; - По всем интересующим вопросам звоните!
lock

Войдите или зарегистрируйтесь
для просмотра информации

Просматривайте условия сделки и всю информацию об объекте
Сохраняйте фильтры в поиске и не вводите заново
Доступ к избранному с любого устройства
Неограниченное добавление в избранное
Позвоните автору
Вам ответят на все вопросы
Остались вопросы по объявлению?
Позвоните владельцу объявления и уточните необходимую информацию.
  • Инфраструктура
  • Похожие рядом
Приточная вентиляция
Центральное отопление
Помощь надёжных риелторов
Риелтор партнёр Циан поможет купить или продать любую недвижимость
160 000 000 ₽
2 187 631 $
1 854 215
Цена за метр
101 305 ₽
Налог
НДС включен: 28 852 459 ₽
Агентство недвижимости
Документы проверены
На Циан
6 лет
Объектов в работе
115