Мы используем куки-файлы. Соглашение об использовании
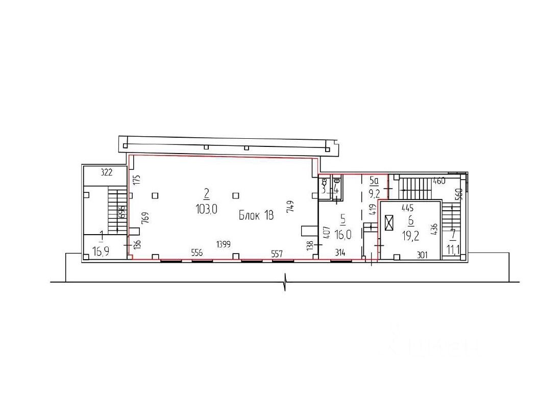
Площадь131 м²
Этаж7 из 7
Отчёт о привлекательности объектаУзнайте, насколько помещение и район подходят для вашего бизнеса
Что входит в отчёт
  • Охват населения
  • Пешеходный трафик
  • Автомобильный трафик
  • Средний бюджет семьи по району
  • Арендные ставки рядом
  • Точки притяжения
  • Конкуренты в радиусе 1 км
  • Рекомендации по выбору места для бизнеса
В продаже уникальное помещение в центре города! По адресу, Новосибирск, проспект Димитрова 1/1. Рядом гостиница Domina, банки, торговые центры с бизнес-центрами. В шаговой доступности от метро и общественного транспорта. Нежилое помещение свободной планировкой колонного типа, расположено на последнем этаже БЦ - этаж седьмой - общая площадь 131 кв.м - высота помещения 2.8 метра - выполнен качественный ремонт - окна с видом на город - свой санузел Лифт поднимается до шестого этажа, имеется выход на кровлю. Коммуникации центральные. Стоимость 15 131 000 рублей с НДС.
lock

Войдите или зарегистрируйтесь
для просмотра информации

Просматривайте условия сделки и всю информацию об объекте
Сохраняйте фильтры в поиске и не вводите заново
Доступ к избранному с любого устройства
Неограниченное добавление в избранное
Позвоните автору
Вам ответят на все вопросы
Остались вопросы по объявлению?
Позвоните владельцу объявления и уточните необходимую информацию.
  • Инфраструктура
  • Похожие рядом
Помощь надёжных риелторов
Риелтор партнёр Циан поможет купить или продать любую недвижимость
15 131 000 ₽
209 138 $
179 972
Цена за метр
115 504 ₽
Налог
НДС включен: 2 728 540 ₽
Агентство недвижимости
Суперагент
На Циан
менее года
Объектов в работе
13