Мы используем куки-файлы. Соглашение об использовании

Продается коммерческая земля, 50 сот.

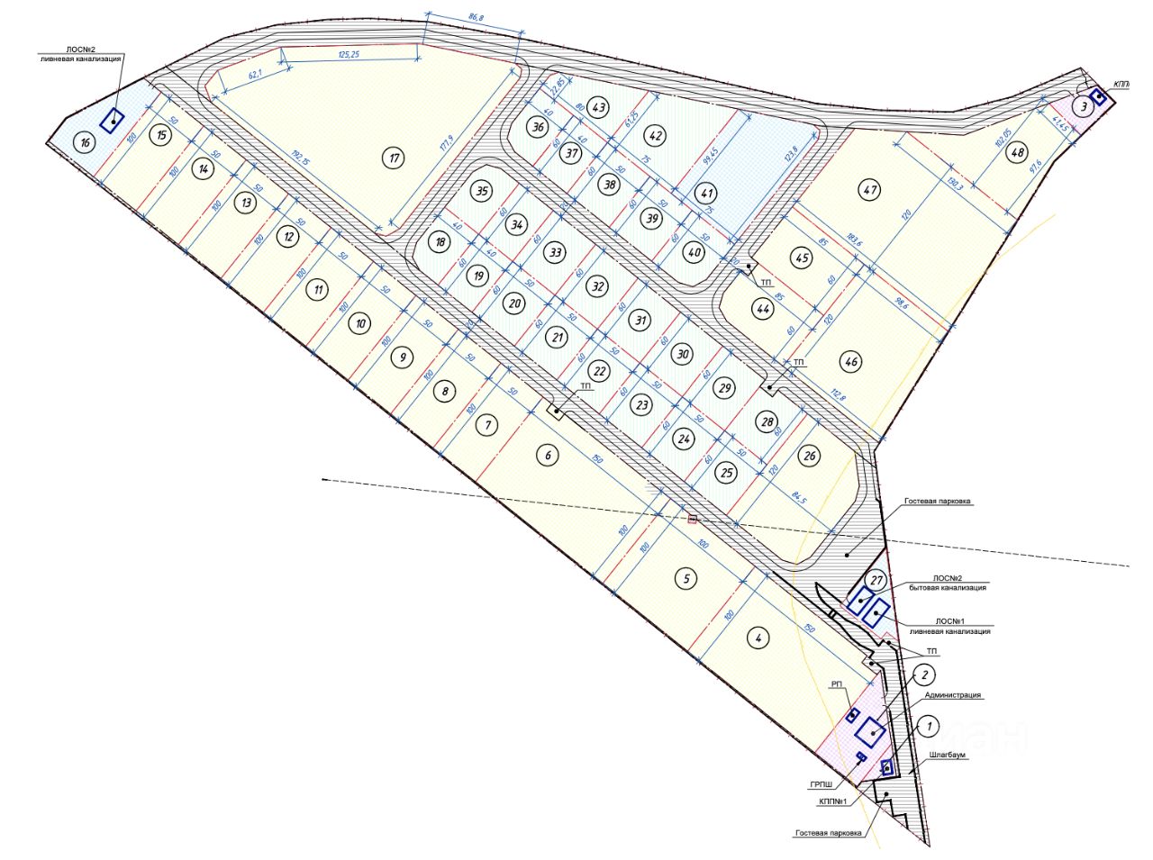
Площадь участка50 сот.
Продается земельный участок в Индустриальном парке НОВА, площадью 50 соток. Участок расположен вблизи Октябрьского района г. Новосибирск. Индустриальный парк имеет удобный подъезд по Бердскому или Гусинобродскому шоссе. С северной стороны земельного участка проходит железная дорога. Земельный участок многофункционального назначения. Виды разрешенного использования: производственная деятельность, склады, придорожный сервис, магазины и прочее. Участок сухой, ровный и правильной, прямоугольной формы. Обременения отсутствуют. Полный комплект документов. ВАЖНО: В стоимость земельного участка включены все центральные коммуникации: газ, водопровод, канализация, электричество за отдельную плату. Точка подключения к сетям вдоль границы участка. Технические условия получены и оплачены. В Индустриальном парке планируется огороженная и охраняемая территория, два въезда, кпп, дорога с твердым покрытием вдоль каждого участка. Кадастровый номер земельного участка: 54:19:142601:6203. Оказываем помощь в проектировании зданий и получении разрешений на строительство. Возможна покупка от 0,3 Га до 5 Га. Актуальный план свободных земельных участков направляется по запросу. Подробнее звоните!
lock

Войдите или зарегистрируйтесь
для просмотра информации

Просматривайте условия сделки и всю информацию об объекте
Сохраняйте фильтры в поиске и не вводите заново
Доступ к избранному с любого устройства
Неограниченное добавление в избранное
Позвоните автору
Вам ответят на все вопросы
Остались вопросы по объявлению?
Позвоните владельцу объявления и уточните необходимую информацию.
  • Инфраструктура
  • Похожие рядом
Помощь надёжных риелторов
Риелтор партнёр Циан поможет купить или продать любую недвижимость
СобственникID 136247515
    11 250 000 ₽
    148 953 $
    127 432
    Цена за сотку
    225 000 ₽
    Налог
    УСН
    СобственникID 136247515