Мы используем куки-файлы. Соглашение об использовании
Помещение свободного назначения, 274,3 м²

Продается помещение свободного назначения, 274,3 м²

Площадь274,3 м²
Этаж1 из 3
Отчёт о привлекательности объектаУзнайте, насколько помещение и район подходят для вашего бизнеса
Что входит в отчёт
  • Охват населения
  • Пешеходный трафик
  • Автомобильный трафик
  • Средний бюджет семьи по району
  • Арендные ставки рядом
  • Точки притяжения
  • Конкуренты в радиусе 1 км
  • Рекомендации по выбору места для бизнеса
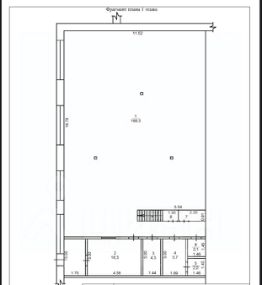
Номер объекта: 541757. Предлагаем готовый арендный бизнес с окупаемостью 7 лет 6 месяцев! Об Арендаторе и условиях договора аренды: - Арендатор ИП - Срок договора 11 месяцев с автопролонгацией - Индексация 10% Технические параметры помещения: - Мощностей :10 кВт (Можно увеличить до 30 кВт прокладкой кабеля) - Высота потолков 6 метра. - Площадь склада 188.3 м2. - Площадь административной части: 86 м2. Локация: - Здание расположено на второй линии улицы Обская. - В 15 минутах ходьбы станция метро речной вокзал. - Высокий автомобильный трафик. - Удобный заезд для большегрузов. Звоните чтобы организовать просмотр. Арт. 122814109
lock

Войдите или зарегистрируйтесь
для просмотра информации

Просматривайте условия сделки и всю информацию об объекте
Сохраняйте фильтры в поиске и не вводите заново
Доступ к избранному с любого устройства
Неограниченное добавление в избранное
Позвоните автору
Вам ответят на все вопросы
Остались вопросы по объявлению?
Позвоните владельцу объявления и уточните необходимую информацию.
  • Инфраструктура
  • Похожие рядом
  • Тип зданияСвободное
  • Общая площадь274,3 м²
Центральное отопление
Помощь надёжных риелторов
Риелтор партнёр Циан поможет купить или продать любую недвижимость
РиелторСФЕРА-НСК
Документы проверены
25 000 000 ₽
341 818 $
289 722
Цена за метр
91 142 ₽
Налог
НДС включен: 4 508 196 ₽
Агентство недвижимости
Документы проверены
На Циан
2 года
Объектов в работе
145