Мы используем куки-файлы. Соглашение об использовании
Помещение свободного назначения, 3 000 м²

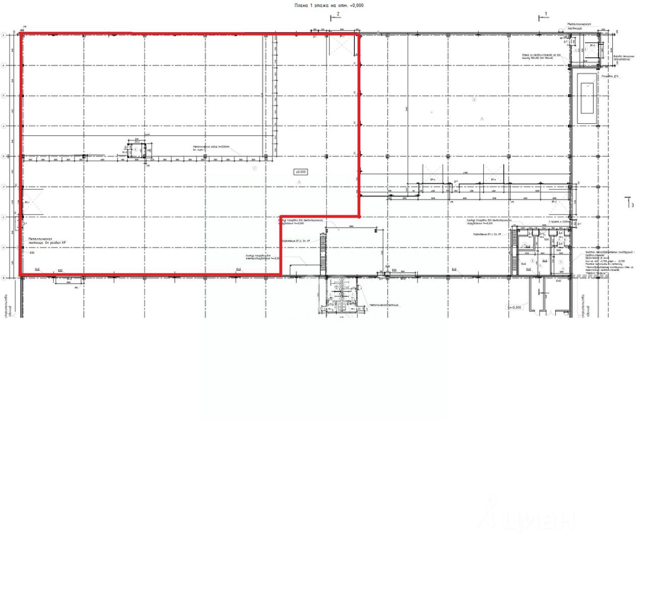
Сдается помещение свободного назначения, 3 000 м²

Площадь3 000 м²
Этаж1 из 1
Отчёт о привлекательности объектаУзнайте, насколько помещение и район подходят для вашего бизнеса
Что входит в отчёт
  • Охват населения
  • Пешеходный трафик
  • Автомобильный трафик
  • Средний бюджет семьи по району
  • Арендные ставки рядом
  • Точки притяжения
  • Конкуренты в радиусе 1 км
  • Рекомендации по выбору места для бизнеса
Код объекта: 2156723. 0% КОМИССИИ. ЭКОНОМИЯ до 500 000 ₽ СРАЗУ. Снять 5000 м² по цене стройплощадки? ВЪЕЗЖАЙТЕ НА ГОТОВЫЙ СКЛАД ПРОИЗВОДСТВО / СКЛАД / РАСПРЕДЕЛИТЕЛЬНЫЙ ЦЕНТР У СЕВЕРНОГО ОБЪЕЗДА Въезд в Новосибирск со стороны Омского тракта. Круглосуточно. Своя котельная ЛОГИСТИКА — ВАШЕ КОНКУРЕНТНОЕ ПРЕИМУЩЕСТВО Объект расположен на въезде в город со стороны Омской траccы с выездом на Северный объезд. Фуры заходят без пробок, маневрируют по огромной асфальтированной площадке и покидают город за 5 минут. Никаких штрафов за въезд в центр и простоев на светофорах. ГОТОВО ПОД ТЯЖЕЛОЕ ОБОРУДОВАНИЕ И ПАЛЛЕТНЫЙ СКЛАД Площадь: 3 000 м² (можно арендовать целиком под распределительный центр). Высота: 9 м до перекрытия / 7 м до ферм. Стеллажи в 6 ярусов — стандарт. Полы: Беспылевые (напольная техника не пылит, срок службы автопогрузчиков выше). Ворота: 2 въезда на уровне земли. Одновременный заезд/выезд нескольких фур. ДВОЙНОЙ ИСТОЧНИК ТЕПЛА Центральное отопление + собственная газовая котельная. Ваш товар не замёрзнет даже в -40, а производственные процессы не встанут из-за аварий на городских сетях. Вы платите только за фактическое тепло. БЕЗОПАСНОСТЬ И РЕЖИМ Круглосуточный доступ (работайте 24/7). Охраняемая территория + видео по периметру. Система пожаротушения (страховка обойдется дешевле).
lock

Войдите или зарегистрируйтесь
для просмотра информации

Просматривайте условия сделки и всю информацию об объекте
Сохраняйте фильтры в поиске и не вводите заново
Доступ к избранному с любого устройства
Неограниченное добавление в избранное
Позвоните автору
Вам ответят на все вопросы
Остались вопросы по объявлению?
Позвоните владельцу объявления и уточните необходимую информацию.
  • Инфраструктура
  • Похожие рядом
  • Площадь участка0 сот.
  • Общая площадь3 000 м²
Центральное отопление
Помощь надёжных риелторов
Риелтор партнёр Циан поможет купить или продать любую недвижимость
2 790 000 ₽/мес.

Обеспечительный платёж 1 ₽

37 259 $/мес.
31 785 /мес.
Цена за метр
11 160 ₽ в год
Налог
НДС включен: 503 114 ₽
Комиссия
нет
Коммунальные платежи
не включены
Эксплуатационные расходы
не включены
Агентство недвижимости
Суперагент