Мы используем куки-файлы. Соглашение об использовании
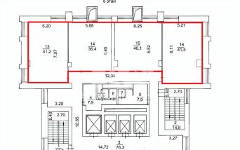
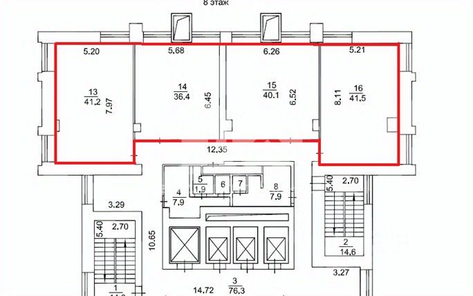
Площадь170 м²
Этаж6 из 9
ПомещениеСвободно
Отчёт о привлекательности объектаУзнайте, насколько помещение и район подходят для вашего бизнеса
Что входит в отчёт
  • Охват населения
  • Пешеходный трафик
  • Автомобильный трафик
  • Средний бюджет семьи по району
  • Арендные ставки рядом
  • Точки притяжения
  • Конкуренты в радиусе 1 км
  • Рекомендации по выбору места для бизнеса
Код объекта: 1952413. Помещения в бизнес центре с хорошим ремонтом! Разные варианты под ваш запрос! Станция метро "Площадь Ленина" в 500 м от здания. Первая линия улицы Проспект Димитрова, Половина этажа. СКУД система доступа к дверям. Возможны и другие варианты под ваш запрос: разные варианты для аренды: Пол этажа здания Полностью этаж задания Два этажа здания Офис с современным ремонтом и потолками 3метра. Система кондиционирования воздуха. Дополнительно оплачиваются услуги и клининг в кабинетах и электроэнергия. Остальные коммунальные платежи включены в арендную плату.
lock

Войдите или зарегистрируйтесь
для просмотра информации

Просматривайте условия сделки и всю информацию об объекте
Сохраняйте фильтры в поиске и не вводите заново
Доступ к избранному с любого устройства
Неограниченное добавление в избранное
Позвоните автору
Вам ответят на все вопросы
Остались вопросы по объявлению?
Позвоните владельцу объявления и уточните необходимую информацию.
  • Инфраструктура
  • Похожие рядом
Помощь надёжных риелторов
Риелтор партнёр Циан поможет купить или продать любую недвижимость
306 000 ₽/мес.

Обеспечительный платёж 100 ₽

4 102 $/мес.
3 487 /мес.
Цена за метр
21 600 ₽ в год
Налог
НДС включен: 55 180 ₽
Комиссия
нет
Коммунальные платежи
не включены
Эксплуатационные расходы
не включены
Агентство недвижимости
Документы проверены