Мы используем куки-файлы. Соглашение об использовании
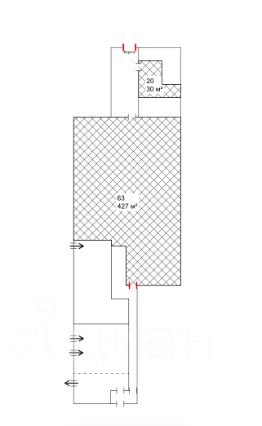
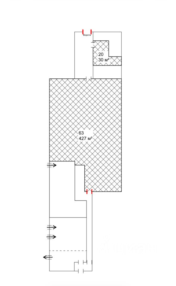
Помещение свободного назначения, 427 м²
Площадь427 м²
Этаж1 из 2
Отчёт о привлекательности объектаУзнайте, насколько помещение и район подходят для вашего бизнеса
Что входит в отчёт
  • Охват населения
  • Пешеходный трафик
  • Автомобильный трафик
  • Средний бюджет семьи по району
  • Арендные ставки рядом
  • Точки притяжения
  • Конкуренты в радиусе 1 км
  • Рекомендации по выбору места для бизнеса
Сдается помещение свободного назначения. В стоимость арендной платы включен НДС. Помещение для аренды 427 м.кВ, высота потолков 2,6 метра. Так же, есть возможность увеличение площади для аренды до 670 м.кВ Если потребуется, можем сделать отдельный вход для Арендатора. ( выделено красным на схеме) Все что показано на фото уберем) Есть возможность заезда в помещение через ворота ( на фото отображено, размеры В-2.35 м. Ш-2м.) с внутренней территории, для транспортировки крупногабаритного груза. Обеспечительный взнос - 50% от месячной оплаты. На все интересующиеся вопросы, с удовольствием отвечу по телефону, звоните пожалуйста.
lock

Войдите или зарегистрируйтесь
для просмотра информации

Просматривайте условия сделки и всю информацию об объекте
Сохраняйте фильтры в поиске и не вводите заново
Доступ к избранному с любого устройства
Неограниченное добавление в избранное
Позвоните автору
Вам ответят на все вопросы
Остались вопросы по объявлению?
Позвоните владельцу объявления и уточните необходимую информацию.
  • Инфраструктура
  • Похожие рядом
  • Общая площадь427 м²
Приточная вентиляция
Местное кондиционирование
Центральное отопление
Помощь надёжных риелторов
Риелтор партнёр Циан поможет купить или продать любую недвижимость
  • Документы проверены
  • 3 года 1 месяц на Циане
  • 4 объявления
  • 300 000 ₽/мес.

    Прямая аренда (от года), минимальный срок аренды 6 месяцев, обеспечительный платёж 200000 ₽, предоплата за 1 месяц

    4 038 $/мес.
    3 388 /мес.
    Цена за метр
    8 431 ₽ в год
    Налог
    НДС включен: 54 098 ₽
    Комиссия
    50%
    Коммунальные платежи
    включены
    Эксплуатационные расходы
    включены
    РиелторЕкатерина Круткова
    Документы проверены