Мы используем куки-файлы. Соглашение об использовании
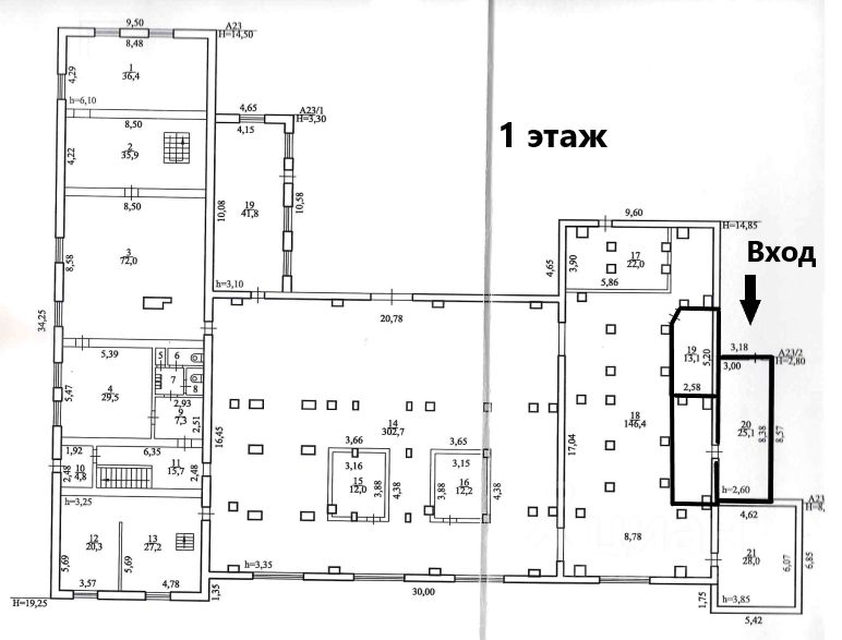
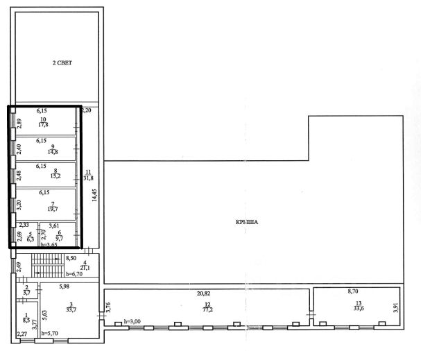
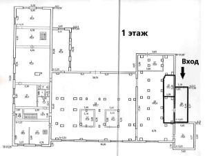
Помещение свободного назначения, от 44,8 до 341,8 м²
Площади44,8 – 341,8 м²
Этаж2 из 5
ПомещениеСвободно
Отчёт о привлекательности объектаУзнайте, насколько помещение и район подходят для вашего бизнеса
Что входит в отчёт
  • Охват населения
  • Пешеходный трафик
  • Автомобильный трафик
  • Средний бюджет семьи по району
  • Арендные ставки рядом
  • Точки притяжения
  • Конкуренты в радиусе 1 км
  • Рекомендации по выбору места для бизнеса
Доступно 7 площадей
44,8 м²
2 этаж
15 679 ₽/мес.
4 200 ₽/м² в год
46,6 м²
4 этаж
11 650 ₽/мес.
3 000 ₽/м² в год
50,2 м²
1 этаж
15 060 ₽/мес.
3 600 ₽/м² в год
83,5 м²
5 этаж
16 700 ₽/мес.
2 400 ₽/м² в год
156,7 м²
5 этаж
31 339 ₽/мес.
2 400 ₽/м² в год
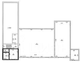
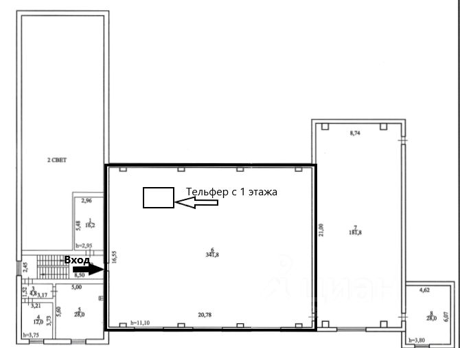
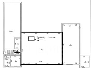
Сдаётся помещение свободного назначения, есть возможность перенести мокрую точку, электрическую мощность предоставим любую, отдельный вход, парковка рядом с помещением, есть тельфер, потолки высокие, окна большие, имеется возможность достроить антресоль, территория охраняется, пропускной режим, здание находится на территории Индустриального парка "Экран". Коммунальные услуги оплачиваются отдельно, НДС 22% включено в стоимость аренды.
lock

Войдите или зарегистрируйтесь
для просмотра информации

Просматривайте условия сделки и всю информацию об объекте
Сохраняйте фильтры в поиске и не вводите заново
Доступ к избранному с любого устройства
Неограниченное добавление в избранное
Позвоните автору
Вам ответят на все вопросы
Остались вопросы по объявлению?
Позвоните владельцу объявления и уточните необходимую информацию.
  • Инфраструктура
  • Похожие рядом
  • Тип зданияИндустриальный парк
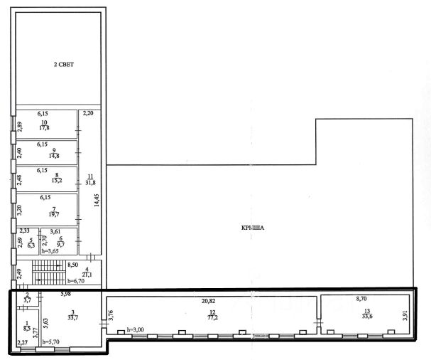
  • Общая площадь341,8 м²
Центральное отопление
Помощь надёжных риелторов
Риелтор партнёр Циан поможет купить или продать любую недвижимость
Автор объявления
ID 115372190
  • Документы проверены
  • 2 года на Циане
  • 11 650 – 102 540 ₽/мес.

    Прямая аренда (от года), минимальный срок аренды 11 месяцев, доступны арендные каникулы, обеспечительный платёж 15000 ₽, предоплата за 1 месяц

    от 224 до 1 709 $/мес.
    от 179 до 1 367 €/мес.
    Цена за метр
    от 2 400 ₽ в год
    Налог
    НДС включен: 18 490 ₽
    Комиссия
    нет
    Коммунальные платежи
    не включены
    Эксплуатационные расходы
    не включены
    Автор объявления
    ID 115372190
    Документы проверены