Мы используем куки-файлы. Соглашение об использовании
Помещение свободного назначения, 2 320 м²
Площадь2 320 м²
Этаж1 из 3
КлассB
Отчёт о привлекательности объектаУзнайте, насколько помещение и район подходят для вашего бизнеса
Что входит в отчёт
  • Охват населения
  • Пешеходный трафик
  • Автомобильный трафик
  • Средний бюджет семьи по району
  • Арендные ставки рядом
  • Точки притяжения
  • Конкуренты в радиусе 1 км
  • Рекомендации по выбору места для бизнеса
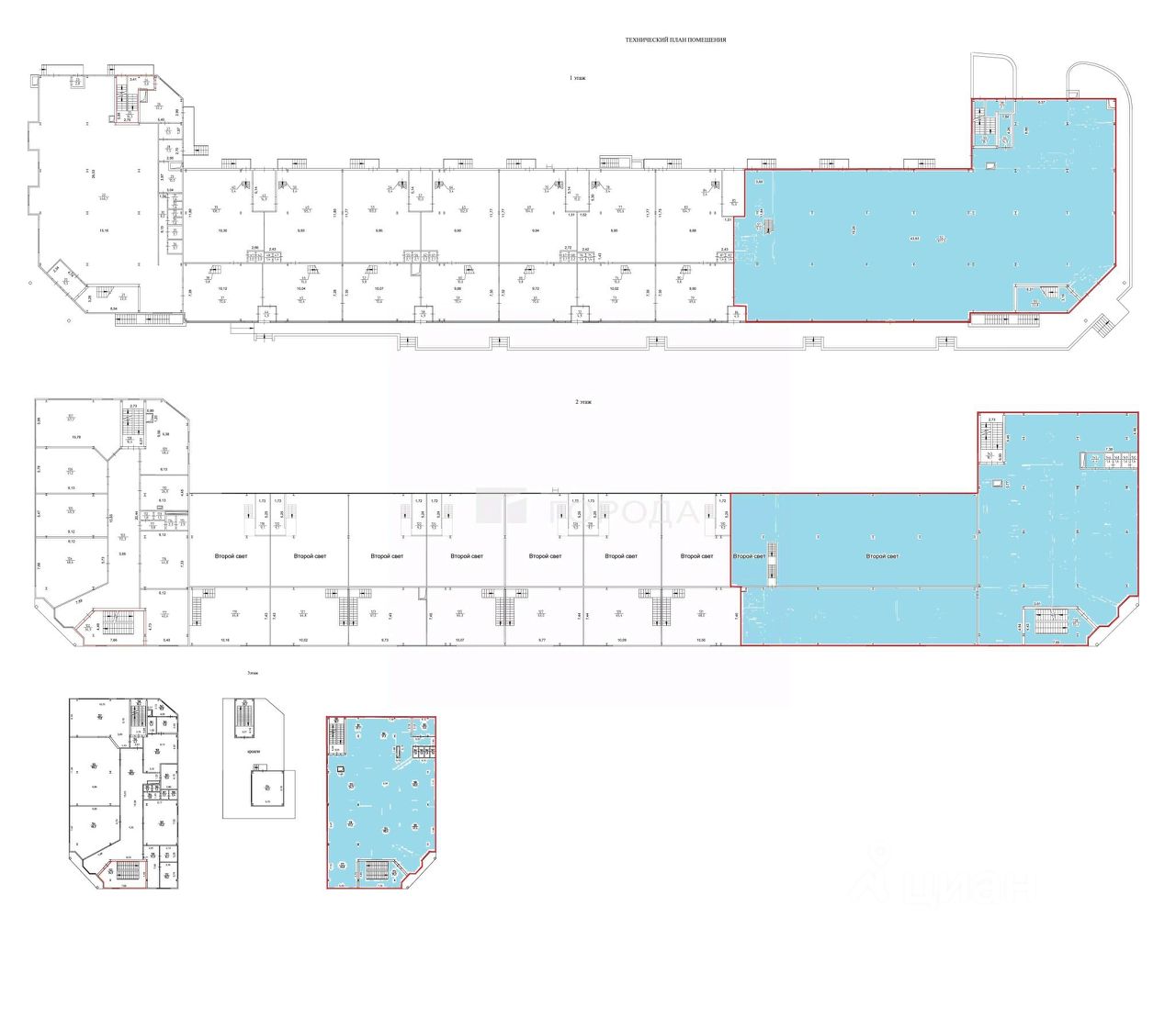
Код объекта: 1516154. Сдается в аренду помещения в комплексе Малая Медведица общей площадью 2320 м.кв. 1-2-3 этажи. Разбивка площадей по этажам: 1 этаж - 1058,2 кв.м - 3 санузла 2 этаж - 740 кв.м. - 4 санузла 3 этаж - 521,7 кв.м - 4 санузла Земельный участок в собственности 10093 м.кв. Здание построено в 2015 году. Организована парковочная зона для клиентов и арендаторов, наземная парковка на 127 машиномест. Собственная трансформаторная подстанция выделенная мощность 200 кВт. Коммуникации центральные, прямые договора с ресурсоснабжающими организациями. Погрузо-разгрузочная зона, позволяющая принимать длинномерный грузовой автотранспорт. Разгрузочная зона пандусного типа, оснащена автоматическими воротами. Собственная газовая котельная, газопровод от ГРС. Есть всё необходимое для обустройства офиса или другого коммерческого объекта. Расположение очень удобное. Рядом нет жилых домов, поэтому Вас не будет беспокоить шум и другие проблемы, связанные с жильём по соседству. Развитая транспортная инфраструктура позволяет комфортно добраться до центра города. Отличное транспортное сообщение (остановка общественного транспорта) позволит персоналу организаций за 15-20 минут добраться от пл. Калинина, станция метро Заельцовская. Свяжитесь с нами прямо сейчас, чтобы узнать больше информации и договориться о просмотре. Все вопросы технического характера готов обсудить в процессе телефонного звонка. Приглашаем на просмотр.
lock

Войдите или зарегистрируйтесь
для просмотра информации

Просматривайте условия сделки и всю информацию об объекте
Сохраняйте фильтры в поиске и не вводите заново
Доступ к избранному с любого устройства
Неограниченное добавление в избранное
Позвоните автору
Вам ответят на все вопросы
Остались вопросы по объявлению?
Позвоните владельцу объявления и уточните необходимую информацию.
  • Инфраструктура
  • Похожие рядом
Помощь надёжных риелторов
Риелтор партнёр Циан поможет купить или продать любую недвижимость
3 480 000 ₽/мес.

Обеспечительный платёж 3480000 ₽, предоплата за 1 месяц

46 519 $/мес.
39 598 /мес.
Цена за метр
18 000 ₽ в год
Налог
УСН
Комиссия
нет
Коммунальные платежи
не включены
Эксплуатационные расходы
не включены
Агентство недвижимости
Документы проверены
На Циан
8 лет
Объектов в работе
более 3000