


323 591 ₽/м²
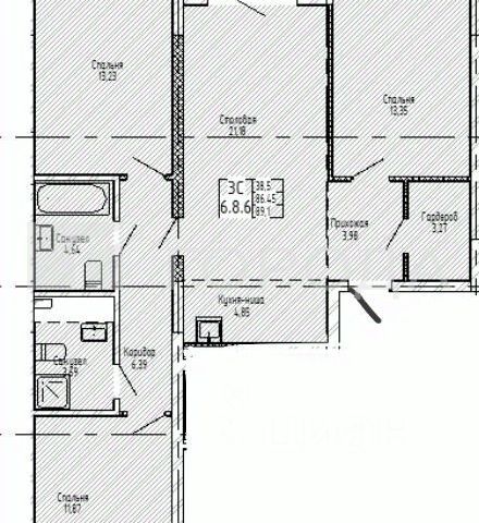
Просторная 5-комн. квартира с предчистовой отделкой в Квартал На Декабристов на 23 этаже. Общая площадь: 479 кв.м., жилая: 100 кв.м., площадь просторной кухни-гостиной: 50 кв.м. Квартира без проходных комнат, окна выходят нa три cтopoны дома. В квартире два балкона, три совмещенных санузла. Наличие в квартире террасы открывает возможность для обустройства дополнительной площади. Высота потолков 3.15 м. Квартира находится в корпусе 6. Дом монолитный, одноподъездный, высотой 24 этажа. На этаже 6 квартир. В подъезде 2 пассажирских и 1 грузовой лифт. В настоящее время строительство завершено, дом сдан в 3 квартале 2024 года. Оформление сделки по договору купли-продажи. Квартира с кухней-гостиной и четырьмя спальнями в квартале "На Декабристов". Особенности планировки: пентхаус, разнесённые спальни, свободная планировка, терраса на крыше. квартиры в нашей базе: ДК-ГП6-1-1.23.1. Квартал "На Декабристов" находится в деловой части Новосибирска в границах улиц Сакко и Ванцетти, 9 Ноября и Зыряновской. Вокруг квартала расположены административные здания, офисы банков и крупных компаний, высшие учебные заведения. Район с удобной транспортной инфраструктурой: станции метро "Октябрьская" и "Речной вокзал", остановка электропоезда и несколько центральных городских автомагистралей, по которым можно добраться до любого района Новосибирска. В 500 метрах — городская набережная и два парка, где можно гулять или делать пробежки. В районе уже сформированная инфраструктура. Рядом расположены крупные торговые центры, три детских сада, две школы и медицинские учреждения. На первых этажах расположены полезные сервисы: салон красоты, кондитерская, кофейня, продуктовый магазин, детский центр и другие. "На Декабристов" состоит из двух кварталов переменной этажности и двух башен в тихом центре Новосибирска. Дворы кварталов закрыты от автомобилей и устроены на кровле подземного паркинга. Это частное пространство только для жителей: здесь расположены детские площадки, места для отдыха, площадка для баскетбола и уличные тренажёры. Башни выступают архитектурными доминантами и открывают виды на город и реку. Первый этап проекта из двух кварталов переменной высотности и башни в 1617 этажей разработан голландским архитектурным бюро. Застройка выполнена в едином стиле, территория объединена аллеей. Продолжение "На Декабристов" — башня в стиле неоклассики с городским садом и видом на реку. Проект немецкого бюро. Если Вы - риелтор, пожалуйста, за более подробной информацией обратитесь на горячую линию на нашем официальном сайте. #zsai1g Квартира квартир в На Декабристов в Новосибирске.























































































































