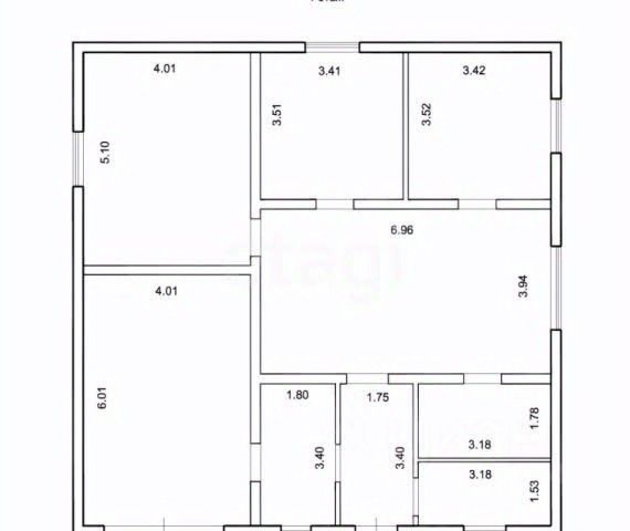
Предлагается уникальный двухэтажный коттедж из бруса площадью 185 кв.м, расположенный в микрорайоне Близкий. Дом и гараж полностью находятся на фундаменте-плите, что обеспечивает надежность и долговечность конструкции. Дом построен по индивидуальному проекту для владельцев, с использованием исключительно экологически чистых материалов: брус, вагонка, утеплитель Эколён, что создает атмосферу гармонии и природной энергетики. На первом этаже расположена просторная кухня-гостиная с выходом на новую террасу с панорамным остеклением и собственным выходом в лес— идеальное место для отдыха и наслаждения природой. В доме имеется погреб, а отопление осуществляется газовым котлом и резервным электрическим — гарантия тепла в холодное время. Важные преимущества: Гараж с автоматическими откатными воротами и смотровой ямой; крытая парковка на две машины. Современная инженерия: электричество 15 кВт, септик, городская вода,тёплый пол на первом этаже.Установлена сигнализация.Проведён интернет Ростелеком,есть ещё Сибирский медведь. На участке 9 соток имеется теплица,многолетние цветы и кустарники. Наш дом построен на тупиковой улице,где нет машин и шума. Внутренние помещения выполнены с аккуратностью и вниманием к деталям. Вся документация, фотоматериалы и проектная документация в наличии, что подтверждает качество и прозрачность сделки. Особая атмосфера этого дома наполняет счастьем и умиротворением, что делает его идеальным местом для семейной жизни или отдыха в гармонии с природой. На территории посёлка есть всё для комфортного проживания : продуктовый магазин Фасоль,Тренажёрный зал,СТО,шиномонтаж,парикмахерская,местное такси 24/7. Приглашаем на просмотр в дом,где ощущается покой,гармония и комфорт! Возможен обмен на вашу недвижимость. Возможна продажа в рассрочку. Комплексная услуга для покупателя с полной финансовой ответственностью агентства При звонке, пожалуйста, сообщите номер варианта - JV080541107878. Дополнительно оплачивается комиссия с покупателя. Пожалуйста, дождитесь ответа специалиста при звонке. Время дозвона до владельца объявления увеличено из-за использования подменных номеров на сайте Циан.
























































































