


236 711 ₽/м²
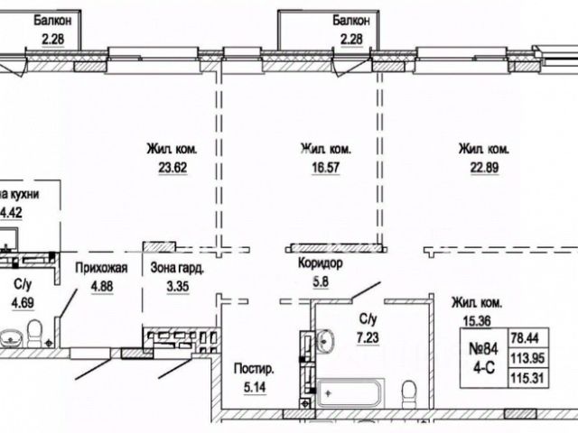
Дом сдан, приглашаем на экскурсию! "Нобель" на Красном проспекте в 2025 году стал победителем в номинации Жилая недвижимость. Бизнес-класс. Регионы (Urban Awards 2025), в 2024 признан Самым инвестиционно-привлекательным проектом УФО+СФО+ДФО (Urban Awards 2024). Дом "Нобель" в Новосибирске спроектирован компанией "Новый мир" совместно с международной командой архитекторов из Великобритании, Италии и Сербии. Уникальность проекта, в том, что при строительстве здания в центральной локации города удалось сохранить более 200 деревьев ценных хвойных пород на территории комплекса. При этом в продукте было сформировано более 50 вариантов функциональных планировочных решений. И все это в великолепной архитектурной форме в стиле ар-деко. Общая площадь территории 2 гектара! Именно это позволило специалистам компании "Новый мир" спроектировать уникальный двор-парк с фонтаном и колоннадой. Архитектура Один из принципов нашей компании: сохранять все лучшее в каждой локации. Архитектурное окружение дома "Нобель" представлено сталинской неоклассикой, именно поэтому специалисты компании "Новый мир" выбрали стиль ар-деко, который называют наследником неоклассицизма и модернизма. "Нобель" — это архитектура, устремленная вверх. 5 башен с величественными шпилями, благородный фасад из натурального гранита, увеличенная площадь остекления с применением архитектурного стекла. И — чего не встретишь в других проектах, — роскошная гранитная прогулочная колоннада — второй уровень благоустройства. Двор Ландшафтный дизайн стилистически продолжает архитектурный замысел ар-деко: строгая закономерность, смелые линии, геометрические узоры, отсутствие ярких оттенков. Пространство двора-парка разделено на две части. Они отделены друг от друга колоннадой, по которой можно прогуливаться на высоте 10 метров и любоваться Красным проспектом. Зоны отдыха, игровые площадки, беседки соединены дорожками и создают один из узнаваемых узоров европейского стиля. Хвойные гиганты и фонтан добавляют особый шик. Холлы Семь парадных холлов дома "Нобель" облицованы широкоформатным итальянским керамогранитом. Мягкий свет, парящие потолки, дизайнерские люстры, бесшумные скоростные лифты, — каждый элемент создает атмосферу дорогого уюта и респектабельности. В доме предусмотрен консьерж-сервис для удобства жителей и гостей. Отделка White Box Квартиры дома Нобель сдаются в предчистовой отделке white box. Она сделана с той же тщательностью и вниманием к малейшим деталям, как и все другие работы по проекту. Квартиры полностью готовы к чистовой отделке.































































































































