Заельцовская
13 минут пешком
9 900 888 ₽
81 826 ₽/м²
Продается 3- х комнатная квартира в ЖК "Ельцовский"
ДОМ СДАН!!!
Адрес: ул. Дуси Ковальчук, 238, этаж 7/19.
Состояние: под самоотделку
Тип дома: Кирпичный, современная новостройка
Ключевые преимущества квартиры и дома:
Свобода планировка: Квартира в состоянии под чистовую отделку — вы можете реализовать любой дизайн-проект под свои решения и возможности!!!
Современные технологии: При строительстве применены экологически безопасные материалы и технологии, повышающие комфорт и энергоэффективность.
Тишина и свет: Дом надежно защищен от уличного шума, во всех квартирах выполнено остекление лоджий.
Удобные лифты: В каждой секции дома — два лифта (пассажирский и грузопассажирский).
Уникальная инфраструктура комплекса (город в городе):
ЖК Ельцовский — это замкнутый прямоугольник с собственной развитой инфраструктурой на первых этажах:
Торговля и услуги: Супермаркет Бахетле, аптеки, отделение банка.
Здоровье и спорт: Физкультурно-оздоровительный комплекс (ФОК).
Питание: Кафе и рестораны.
Для детей: Новый детский сад в шаговой доступности.
Идеальная транспортная и пешеходная доступность:
Метро: Станция Заельцовская в непосредственной близости (пешая доступность).
Дороги: Удобный подъезд к дому и выезд в любую часть города с четырех сторон: ул. Дуси Ковальчук, Нарымская, Плановая, Жуковского.
Пешком: В окружении лучших локаций для жизни — Новосибирский зоопарк, Дендрологический парк, Городская клиническая больница.
Развитая социальная инфраструктура района:
Рядом с домом сосредоточено всё для комфортной жизни семьи:
Образование: 2 школы, 1 гимназия, 6 детских садов. Университет путей сообщения, Медицинский университет.
Спорт: 4 спортивных учреждения.
Ежедневные нужды: 17 продуктовых магазинов.
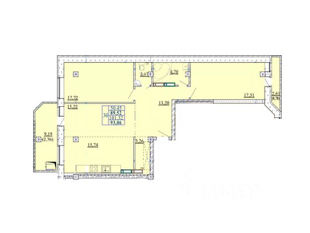
Общая площадь: ~ 121 м²
Жилая площадь: ~ 26.30 + 19.34 + 26.15 м² .
. Площадь кухни: ~ 10.02
Высота потолков: 3.0 м
Этаж: 7/19
Стоимость: 9 900 888 рублей.
Возможны разные формы расчета
Просмотр в удобное время по договоренности.
По данному объекту предусмотрена комиссия А.Н.

















































































