


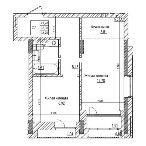
200 495 ₽/м²
Квартал открытий "Беринг", с любовью созданный компанией "Новый мир" состоит из четырех зданий переменной этажности и расположен на первой береговой линии реки Обь в старом центре Новосибирска - 10 минут пешком до метро Гарина-Михайловского.. Квартал спроектирован так, чтобы выгодно выделяться среди окружающего пейзажа Железнодорожного района Новосибирска. Современная архитектура комплекса выполнена в сочетании технологии вентилируемого фасада и облицовки клинкерным кирпичом. Беринг - настоящее открытие для тех, кто хочет совместить близость к центру города с преимуществами жизни на правом берегу Оби. В общественной зоне квартала организовано зеленое сердце квартала. Благоустроенная территория для отдыха и социальной активности жителей квартала и ближайших домов. Виды на реку Переменная высотность зданий обеспечивает вид на реку для максимального количества квартир: любуйтесь закатами прямо из своей квартиры. Ниши под системы кондиционирования Специальное помещение для кондиционеров с доступом с лоджии каждой квартиры сохранит первозданную эстетику фасада. Балконов нет, есть лоджии. Без ступеней и пандусов Доступ во входные группы расположен на уровне земли, чтобы создать удобство мамам с колясками и людям с ограниченными возможностями здоровья. Многоуровневое благоустройство Перепад рельефа открывает восхитительные виды на берег, прибрежную зелень и водную гладь. Выход на береговую линию С придомовой территории комплекса организован выход на берег реки Обь для ваших утренних пробежек и вечерних прогулок. Архитектурная подсветка фасада Подсветка фасада сделает жилой квартал еще одним украшением города, заметным со стороны реки, Димитровского моста и улицы Владимировской.







































































































