


213 743 ₽/м²
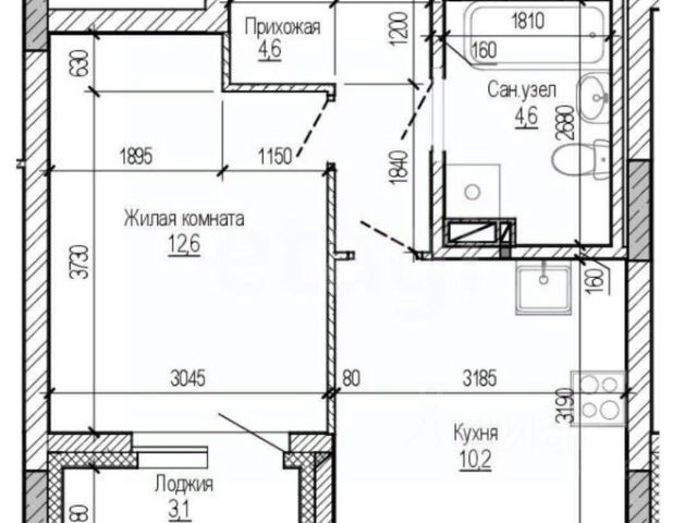
Продается однокомнатная квартира от застройщика с предчистовой отделкой в ЖК "Лебедевский" на 12 этаже. Общая площадь: 34.2 кв.м., жилая: 9.4 кв.м., площадь просторной кухни-гостиной: 13.3 кв.м. Все окна выходят на одну сторону. В квартире один балкон, один совмещенный санузел. Высота потолков 2.82 м. Дом монолитный, многоподъездный, переменной этажности, от 9 до 12 этажей. Квартира находится в 1-й секции высотой 12 этажей в корпусе 1. На этаже 8 квартир. В подъезде 1 пассажирский и 1 грузовой лифт. Окончание строительства - 2 квартал 2028 года. Оформление сделки по договору долевого участия. Квартира с кухней-гостиной и одной спальней в квартале "Лебедевский". Особенности планировки: балкон, предчистовая отделка. квартиры в нашей базе: ЛБД01.1-Ж1.12.6. "Лебедевский" находится в Заельцовском районе, между улицами Лебедевского и Георгия Колонды. Рядом расположены остановки наземного транспорта. До станций метро "Заельцовская" и "Площадь Калинина" — 10-15 минут на автомобиле. По улице Георгия Колонды можно доехать на Мочищенское шоссе, улицы Жуковского и Красного проспекта, а оттуда — в любую точку города. "Лебедевский" состоит из башен и закрытых домов-кварталов высотой от 8 до 17 этажей. Благодаря переменной высотности зданий, архитектура квартала получилась разнообразной, а дворы домов — светлыми. В основе проекта — органичное соседство жилья с природой. "Лебедевский" граничит с лесопарковой зоной. Также мы предусмотрели здесь игровые зоны, площадки для тренировок, прогулочные дорожки, отдельно стоящий паркинг со спортивным комплексом и подземные парковки. Камерные дворы предназначены для отдыха жителей и закрыты для других горожан. Они приподняты над уровнем земли, а доступ автомобилей на их территорию ограничен. Во дворах появится до 40 видов растений. Мы подберём их так, чтобы в каждое время года двор имел свой цвет. Деревья высадим сразу взрослыми, со сформированной кроной. Зелень будет даже зимой — благодаря хвойным растениям. Детские площадки мы сделаем максимально абстрактными — чтобы вдохновлять детей на творчество, а не диктовать им сценарии игры. Разместим игровое оборудование только из натуральных материалов. Архитектурная выразительность фасадов достигается за счёт практичных и в то же время эстетичных решений. Большие окна помогают наполнить комнаты естественным светом. Летние помещения в каждой квартире служат дополнительным пространством для уединения. Также здесь можно установить кондиционер. На верхних этажах спроектированы террасы, которые формируют архитектурный облик зданий. На первых этажах домов будут работать магазины и полезные сервисы. Если Вы - риелтор, пожалуйста, за более подробной информацией обратитесь на горячую линию на нашем официальном сайте. #25A11w















































































































